定做運輸帶傳遞窗時,廠家技術人員需要了解您傳遞物品有多重才配運輸帶!還有運輸帶傳遞窗的紫外線殺菌燈是自動開啟,還是手動開啟。運輸帶傳遞窗可按用戶大小尺寸及要求設計定作。
輸送線傳遞窗制作要求:
輸送線傳遞窗傳遞窗內尺寸寬*深*高分別做多大?要不要帶風淋,輸送線進、出各做多長?傳遞物品一件多重?傳遞窗、輸送線用201不銹鋼還是304不銹鋼制作等等?
輸送線傳遞窗工作流程:
1、貨物進入前端輸送帶→前端升降門自動開啟→貨物進入傳遞窗內→升降門自動關閉→紫外線燈手動控制開關→設定滅菌時間完畢→后端升降門自動打開貨物完全通過→后端升降門自動關閉→貨物在未端輸送帶停止→待貨物取走后方可開啟下一次輸送。
2、若貨物需要回輸出室外→按下回輸按鍵→輸送帶會反轉運行→室外輸送帶要保證沒有物品防。
1、材質: 1.2mm304不銹鋼板
2、窗玻璃: 5.0mm高透明度鋼化玻璃
3、通道規格:500X500X400mm
輸送線傳遞窗配置:
1、PLC控制系統1套
2、帶201不銹鋼滾筒3段(500寬X800/500/900深X600mm高帶可調節腳);
3、急停開關2個;
4、帶觸摸屏X1PCS
5、紫外線滅菌燈一個
6、電源220V 總功率: 1500W
7、正反轉按鍵止反轉運行后物品掉下。
輸送帶傳遞窗的制作法于其它傳遞窗不一樣,輸送線傳遞窗下面加了條流水線,上層要傳遞貨物。流水輸送線傳遞窗一般要做整個高度才可以,門上面也要固定好。
輸送帶傳遞窗還可吹淋被傳遞物品的表面,防止物品可能攜帶塵埃進入潔凈室。輸送線傳遞窗被廣泛應用于微細科技、生物實驗室、制藥廠、醫院、食品加工業、LCD、電子廠等等一切需要空氣凈化的行業領域。
輸送線傳遞窗具體功能是一種置于潔凈室隔墻的裝置,是一種潔凈室的輔助設備,輸送線傳遞窗用于不同的潔凈區之間,潔凈區與非潔凈區之間小件物品的傳遞,潔凈廠房專用傳遞窗,具有氣閘的作用,防止非潔凈的空氣進入潔凈室。
輸送帶傳遞窗主要用于不同級別的潔凈房間的小件物料傳遞或潔凈區與非潔凈區之間小件物品的傳遞;是潔凈區內為減少開門次數而設置的一種傳遞物品的裝置;能夠防止低級不潔凈空氣在傳遞物料時進入高等級潔凈房間,它使潔凈室的污染降低到比較低的程度。
輸送帶傳遞窗在傳遞物料時,頂部吹出高速、潔凈氣流,吹除貨物表面的塵粒,此時,兩側門可以打開也可關閉,潔凈氣流起到氣閘作用,以保證潔凈室室外的空氣不會影響室內的潔凈度。
輸送帶傳遞窗具有以下幾項特點:
輸送線傳遞窗按用途分為標準型傳遞窗和潔凈型傳遞窗兩種;外殼按材料分為鋼板噴塑型和全不銹鋼型倆種;按門互鎖形式分為機械互鎖和電子互鎖兩種;通用型尺寸,特殊規格按用戶要求制作。
輸送帶傳遞窗運輸問題注意要點:
A、輸送帶傳遞窗適用一般交通工具運輸,運輸途中,防止雨、雪侵襲,以免造成損壞,銹蝕。
B、輸送帶傳遞窗應存溫度為-10℃~ 40℃,相對濕度不大于80%,無酸堿等腐蝕性氣體的庫。
C、輸送帶傳遞窗開箱時,應文明作業,不得有、野蠻的操作 ,以免傷及箱內凈化單元或造身傷害。
D、輸送帶傳遞窗開箱后,請確認產品是否為所定產品,然后對裝箱清單內容仔細檢查是否有缺件,各部件是否有因運輸造成的損壞象,如發現損壞,請在收到產品兩天內與傳遞窗廠家。
E、出現自行改裝現象,則不在保質范圍之內。
輸送帶傳遞窗電氣問題注意要點:
1、請不要在一分鐘內反復操作電源開關,以免因操作而損壞電器元件。
2、傳遞窗不具能力,嚴禁在易燃易爆的下使用。
3、請不要產品內的電器元件,當必要時請先切斷電源。
4、一定不要改裝,以免觸電、火*等事故。
5、檢查傳遞窗時請切斷電源,以免無意中啟動運行,造身傷害。
輸送帶傳遞窗無隔板高效過濾器現行用的密封膠是A、B膠,而其他生產廠家用的是聚氨酯膠。A、B膠的調膠比例為12,其密封性能好,但一旦比例失調,就會造成嚴重的后果,譬如說膠不干,或者是膠氣泡等現象,致使過濾器報廢。
6、請不要將重物電源引線上、不要夾壓電源線,以免電源引線破損而引發災、觸電。
7、更換熔斷器時,要確保其容量不得超過容量,以免引起災。
傳遞窗根據箱體材質不同可分為不銹鋼傳遞窗、外鋼板內不銹鋼傳遞窗等。傳遞窗制作常用板材有冷軋鋼板(A3板)與不銹鋼板(SUS201,SUS304,SUS316等)。
輸送帶傳遞窗厚度一般為0.8~1.5mm。(傳遞窗制作屬于薄板焊接,對焊工焊接技術及打磨技術要求較高,傳遞窗內膽均為砂光不銹鋼,不同材質傳遞窗價格成本不同。)
輸送帶傳遞窗一般吹淋時間可以通過計算時間來結果,假如你想要在10分鐘內過完工人的話,一次吹淋時間一般在20秒左右,一分鐘可吹淋3次,30人吹淋,一次1人的話,10分鐘解決問題;
]]>
在生物實驗室內的,傳遞實驗樣本時,為了防止兩實驗室之間空氣交叉污染的風險。因此需要一種生物實驗室傳遞窗,可以對傳遞窗內傳遞的物品進行凈化消毒,以確保實驗室內免受污染。生物傳遞窗包括柜體,在柜體的兩側設置有相對的柜門,在柜體上設置有空氣凈化裝置,空氣凈化裝置設置在柜體的側邊,空氣凈化裝置與柜體內腔之間設置有隔板,空氣凈化裝置設置在隔板的同一側,空氣凈化裝置包括吸氣裝置和出氣裝置,吸氣裝置、出氣裝置固定在隔板上,通過隔板上的通孔與柜體內腔連通,吸氣裝置與出氣裝置之間通過連通管連通。
傳遞窗是設置在潔凈室及實驗室出入口或不同潔凈度等級房間之間,傳遞貨物時阻斷室內外氣流貫通的裝置,以防止污染空氣進入較潔凈區域和產生交叉污染。風淋式傳遞窗在傳遞物料時,頂部吹出高速、潔凈氣流,吹除貨物表面的塵粒,此時,兩側門可以打開也可關閉,潔凈氣流起到氣閘作用,以保證潔凈室室外的空氣不會影響室內的潔凈度。傳遞窗的兩側門內側邊裝有專用密封條,以確保傳遞窗的氣密性。
傳遞窗分類:
1、電子互鎖聯鎖傳遞窗;2、機械互鎖傳遞窗;3、層流傳遞窗;4、風淋傳遞窗。
生物實驗室的要求比較嚴格:
1、生物實驗室傳遞窗所有傳感器必須經過具有資質的校驗單位校驗,并提供校驗和合格;
2、生物實驗室傳遞窗設備安裝完畢后,需要對每臺潔凈傳遞窗進行現場(至少潔凈度、風速、風壓、照度、噪聲和氣流流型等);
3、傳遞窗雙門不得同時打開,傳遞窗內應設物理消毒裝置。性材料必須放置在密閉容器中方可通過傳遞窗傳遞。
4、傳遞窗動態測試可在常規操作、培養基模擬灌裝過程中進行,證明達到動態的潔凈度級別,但培養基模擬灌裝試驗要求在“差狀況”下進行動態測試。
5、在實驗室區域,對于不能從更衣室攜帶進出主實驗室的材料、物品和器材,應在主實驗室墻上設置具有雙門結構的高壓滅菌鍋、浸泡消毒槽、熏蒸室或帶有消毒裝置的通風傳遞窗,以便進行傳遞或消毒。
微生物實驗室設計建設要求:
微生物實驗室設計建設的基礎:
選址
三級生物安全防護實驗室可與其他用途房屋設在一棟建筑物中,但必須自成一區。該區通過隔離門與公共走廊或公共部位相隔。
微生物實驗室平面布局
a)三級生物安全防護實驗室的核心區包括實驗間及與之相連的緩沖間。
b)緩沖間形成進入實驗間的通道。必須設兩道連鎖門,當其中一道門打開時,另一道門自動處于關閉狀態。如使用電動連鎖裝置,斷電時兩道門均必須處于可打開狀態。在緩沖間可進行二次更衣。
c)當實驗室的通風系統不設自動控制裝置時,緩沖間面積不宜過大,不宜超過實驗間面積的八分之一。
d)Ⅱ級或Ⅲ級生物安全柜的安裝位置應遠離實驗間入口,避開工作人員頻繁走動的區域,且有利于形成氣流由“清潔”區域流向“污染”區域的氣流流型。
微生物實驗室建設設施要求:
圍護結構
a)實驗室(含緩沖間)圍護結構內表面必須光滑耐腐蝕、防水,以易于消毒清潔。所有縫隙必須加以可靠密封。
b)實驗室內所有的門均可自動關閉。
c)除觀察窗外,不得設置任何窗戶。觀察窗必須為密封結構,所用玻璃為不碎玻璃。
d)地面應無滲漏,光潔但不滑。不得使用地磚和水磨石等有縫隙地面。
e)天花板、地板、墻間的交角均為圓弧形且可靠密封,施工時應防止昆蟲和老鼠鉆進墻腳。
通風空調
a)必須安裝獨立的通風空調系統以控制實驗室氣流方向和壓強梯度。該系統必須確保實驗室使用時,室內空氣除通過排風管道經高效過濾排出外,不得從實驗室的其他部位或縫隙排向室外;同時確保實驗室內的氣流由“清潔”區域流向“污染”區域。進風口和排風口的布局應使實驗區內的死空間降低到最小程度。
b)通風空調系統為直排系統,不得采用部分回風系統。
c)環境參數:相對于實驗室外部,實驗室內部保持負壓。實驗間的相對壓強以-30Pa~-40Pa為宜,緩沖間的相對壓強以-15Pa~-20Pa為宜。實驗室內的溫、濕度以控制在人體舒適范圍為宜,或根據工藝要求而定。實驗室內的空氣潔凈度以GB 50073—2001《潔凈廠房設計規范》中所定義的七級至八級為宜。實驗室人工照明應均勻,不眩目,照度不低于500lx。
d)為確保實驗室內的氣流由“清潔”區域流向“污染”區域,實驗室內不應使用雙側均勻分布的排風口布局。不應采用上送上排的通風設計。由生物安全柜排出的經內部高效過濾的空氣可通過系統的排風管直接排至大氣,也可送入建筑物的排風系統。應確保生物安全柜與排風系統的壓力平衡。
e)實驗室的進風應經初效過濾器、中效過濾器、高效過濾器等三級過濾再經過傳遞窗防止污染空氣進入較潔凈區域和產生交叉污染。
f)實驗室的排風必須經高效過濾或加其他方法處理后,以不低于12m/s的速度直接向空中排放。該排風口應遠離系統進風口位置。處理后的排風也可排入建筑物的排風管道,但不得被送回到該建筑物的任何部位。

g)進風和排風高效過濾器必須安裝在實驗室設在圍護結構上的風口里,以避免污染風管。
h)實驗室的通風系統中,在進風和排風總管處應安裝氣密型調節閥門,必要時可完全關閉以進行室內化學熏蒸消毒。
i)實驗室的通風系統中所使用的所有部件均必須為氣密型。所使用的高效過濾器不得為木框架。
j)應安裝風機啟動自動聯鎖裝置,確保實驗室啟動時先開排風機后開送風機。關閉時先關送風機后關排風機。
k)不得在實驗室內安裝分體空調器。
微生物實驗室設計建設之安全裝置及特殊設備:
a)必須在主實驗室內設置Ⅱ級或Ⅲ級生物安全柜。其安裝位置應滿足6.3.2.5d)中的要求。
b)連續流離心機或其他可能產生氣溶膠的設備應置于物理抑制設備之中,該裝置應能將其可能產生的氣溶膠經高效過濾器過濾后排出。在實驗室內所必須設置的所有其他排風裝置(通風櫥、排氣罩等)的排風均必須經過高效過濾器過濾后方可排出。其室內布置應有利于形成氣流由“清潔”區域流向“污染”區域的氣流流型。
c)實驗室中必須設置不產生蒸汽的高壓滅菌鍋或其他消毒裝置。
d)實驗間與外部應設置傳遞窗。傳遞窗雙門不得同時打開,傳遞窗內應設物理消毒裝置。感染性材料必須放置在密閉容器中方可通過傳遞窗傳遞。

e)必須在實驗室入口處的顯著位置設置壓力顯示報警裝置,顯示實驗間和緩沖間的負壓狀況。當負壓指示偏離預設區間必須能通過聲、光等手段向實驗室內外的人員發出警報.可在該裝置上增加送、排風高效過濾器氣流阻力的顯示。
f)實驗室啟動工作期間不能停電。應采用雙路供電電源。如難以實現,則應安裝停電時可自動切換的后備電源或不間斷電源,對關鍵設備(生物安全柜、通風櫥、排氣罩以及照明等)供電。
g)可在緩沖間設洗手池:洗手池的供水截門必須為腳踏、肘動或自動開關。洗手池如設在主實驗室,下水道必須與建筑物的下水管線分離,且有明顯標志。下水必須經過消毒處理。洗手池僅供洗手用,不得向內傾倒任何感染性材料。供水管必須安裝防回流裝置。不得在實驗室內安設地漏。
微生物實驗室設計建設其他注意:
a)實驗臺表面應不透水,耐腐蝕、耐熱。
b)實驗室中的家具應牢固。為易于清潔,各種家具和設備之間應保持一定間隙。應有專門放置生物廢棄物容器的臺(架)。家具和設備的邊角和突出部位應光滑、無毛刺,以圓弧形為宜。
c)所需真空泵應放在實驗室內。真空管線必須裝置在線高效過濾器。
d)壓縮空氣等鋼瓶應放在實驗室外。穿過圍護結構的管道與圍護結構之間必須用不收縮的密封材料加以密封。氣體管線必須裝置在線高效過濾器和防回流裝置。

e)實驗室中應設置洗眼裝置。
f)實驗室出口應有發光指示標志。
g)實驗室內外必須設置通訊系統。
h)實驗室內的實驗記錄等資料應通過傳真機發送至實驗室外。
實驗室各種傳遞窗選購可按用戶要求定做!
]]>產品介紹:
電動升降傳遞窗又稱為升降式電動傳遞窗,可定制為單門或雙門電動傳遞窗,產品廣泛應用于各種醫療機構(如手術室),凈化車間、實驗室、售賣窗口等隔斷場所的大小物品傳遞,并可根據各種不同使用場所的要求,提供不同型號種類的電動傳遞窗供客戶選擇。
單門電動升降傳遞窗安裝案例:

單門電動升降傳遞窗技術參數:

電動升降傳遞窗|升降電動傳遞窗產品特點:
1、采用優越SUS304不銹鋼制作窗框,堅固耐用;
2、采用6mm安全玻璃無框設計,外觀簡潔大方;
3、9cm側框+1cm上下窗框設計,空間利用率;
4、整體厚度僅9cm,能適應大部分的墻體安裝;
5、一鍵升降輕觸式開關設計,操作簡單方便;
6、防夾功能,在升降過程中碰到障礙物自動反方向運行;
7、自動/手動機械切換功能,遇突發情況下可暫時切換為手動模式;
8、兩側帶升降控制,主控一側可開啟或關閉另外一側的升降功能。
9、外形美觀,密封效果好;門采用電子互鎖或機械互鎖,性能可靠;內壁采用不銹鋼板制作,平整光潔耐磨,底面無縫結構;根據工藝需要,可選用帶蜂鳴器,紫外線殺菌燈或對講機等配件。
雙門電動升降傳遞窗安裝案例:

雙門電動升降傳遞窗技術參數:

電動升降傳遞窗|升降式電動傳遞窗操作說明:
采用優質不銹鋼外殼美觀大方、輕觸式開關方便耐用、全電子化控制高效先進、帶互鎖及防夾手(物品)功能設計人性化、有效隔斷空氣中的微粒及細菌的污染。
電動升降傳遞窗|升降式電動傳遞窗一般材料構成:
側框面板: 1.5mm304m不銹鋼板
頂板、底板: 10mm304不銹鋼板
腔體封板: 1.2mm304m不銹鋼板
窗玻璃: 6.0mm高透明度有機玻璃
工作電壓:220V/50HZ
升降式電動傳遞窗應用范圍:
升降式電動傳遞窗廣泛應用于各大小醫院的CSSD中心供應室、無菌發放室、手術室、制藥廠、食品廠、噴涂車間、科研室、凈化室等對室內外環境要求較高同一凈化級別和相同壓差要求區域小件物品的傳遞,減少開門次數,降低污染程度的密閉場所。升降式電動傳遞窗因為采用電機升降,可以有效防夾手,主要用于無菌物品傳遞,是醫院最*佳的傳遞窗。

電動升降傳遞窗|升降式電動傳遞窗操作說明:
1、帶防夾手功能;
2、帶電子按鈕開關控制;
3、互鎖功能;
4、內置殺菌紫外線燈;
5、內置對講功能、3秒快速打開、關閉,能有效隔斷室外空氣中的細菌及粉塵的污染,上升或下降只需三秒鐘,傳遞物品方便快捷,內置人性化的語音交互系統,當互鎖功能將室內外完全隔斷時,透過此項功能,室內外工作人員可正常溝通,真正實現室內外傳遞溝通無間。固定窗和活動窗之間有1mm左右的空隙。 當AB兩窗都關閉時,使用者可隨意開啟A窗或B窗,但不能同時開啟AB窗,當A窗或B窗其中一個已經開啟,另一側窗則處于關閉狀態,從而真正實現室內外完全隔斷。
傳遞窗使用方法:
1 、物料進出潔凈區,必須嚴格與人流通道分開,由生產車間物料專用通道進出。
2 、物料進入時,原輔料由配制班工序負責人組織人員脫包或外表清潔處理后,經傳遞窗送至車間原輔料暫存間;內包材料在其外暫間拆去外包裝后,經傳遞窗送入內包間。車間綜合員與配制、內包裝工序負責人辦理物料交接。
3 、通過傳遞窗傳遞時,必須嚴格執行傳遞窗內外門“一開一閉”的規定,兩門不能同時開啟。開外門將物料放入后先關門,再開內將物料拿出,關門,如此循環。
4 、潔凈區內的物料送出時,應先將物料運送至相關的物料中間站內,按物料進入時的相反程序移出潔凈區。
5 、所有半成品從潔凈區運出,均需從傳遞窗送至外暫存間,經物流通道轉運至外包裝間。
6 、極易造成污染的物料及廢棄物,均應從其專用傳遞窗運到非潔凈區。
7,物料進出結束后,應及時清理各清包間或中間站的現場及傳遞窗的衛生,關閉傳遞窗的內外通道門,做好清潔消毒工作。
傳遞窗維護保養:
1、經常保持傳遞窗內外側及窗內衛生,傳遞窗作為物品通道,且不可作為存放物品場所。
2. 傳遞窗使用完畢后,應立即關閉窗門;在傳遞物品時,不允許窗門打開時間過長,在打開傳遞門之前,應保證物品就在傳遞窗附,且不可打開窗門后,再耽誤長時間去其它地方取物品,以免窗門變形。
3. 通過傳遞窗傳送的物品,每次不能超過傳遞窗容量,以免擠壓窗體變形。
]]>型號:CDC-M02 V1.0;
產品名稱:互鎖控制器、傳遞窗互鎖控制器、互鎖電路板、傳遞窗互鎖電路板、互鎖主板;
用途:主要應于用傳遞窗,保證雙電子互鎖。


CDC-M02 V1.0傳遞窗互鎖控制器接線圖:

1、強電輸入接口
a.供電電源:220VAC(絲印為AC220V L N)
2、弱電輸入接口
a.內門門磁開關:無源觸點(絲印標記為內門磁 ?D2??0V)
3、弱電輸出接口
CDC-M02 V1.0傳遞窗互鎖控制器使用注意事項:
1、產品尺寸:122*92(MM),要求開孔尺寸:根據鋁板上面螺絲孔位開孔。
2、產品使用的門磁開關要求:關門時觸點閉合,開門時觸點斷開。
3、產品使用的電鎖要求:12VDC供電,200MA以下電流。
說明:目前此CDC-M02 V1.0型號產品很少,可以由SJ-CDC-M02 V1.0代替,外觀、使用功能都一樣。
點擊進入:SJ-CDC-M02 V1.0
]]>型號:SJ-CDC-M02 V1.0
名稱:傳遞窗互鎖控制器、互鎖板、互鎖控制器、互鎖主板、互鎖控制器輸出板;

傳遞窗互鎖電路板SJ-CDC-M02 V1.0操作說明:
1、 安裝檢修:安裝完畢后進行通電調試,此時電源指示燈亮,表示系統供電正常,可進行下一步調試。

2、 正常工作流程:
打開外門:此時內門鎖開啟以防止灰塵或細菌進入內部;當貨物放入窗口后關上外門,這時內門鎖解鎖。
打開內門:當吹淋結束后,這時打開內門,外門鎖啟動以防止灰塵或細菌進入內部,當貨物取出后關上內門。

五、使用注意事項:
1、產品尺寸:122*92(MM),要求開孔尺寸:根據鋁板上面螺絲孔位開孔。
2、產品使用的門磁開關要求:關門時觸點閉合,開門時觸點斷開。
3、產品使用的電鎖要求:12VDC供電,200MA以下電流。

SJ-CDC-M02 V1.0傳遞窗互鎖電路板接線說明:
1、強電輸入接口
a.供電電源:220VAC(絲印為AC220V L N)
2、弱電輸入接口
a.內門門磁開關:無源觸點(絲印標記為內門磁??D2??0V)
3、弱電輸出接口

主要是在傳遞窗底部增加一臺滾筒輸送線,方便物料傳遞。滾筒傳遞窗是一種潔凈室的輔助設備,主要用于潔凈區與潔凈區之間、潔凈區與非潔凈區之間小件物品的傳遞,以減少潔凈室的開門次數,把對潔凈室的污染降低到最低程度。

傳遞窗分類配置:
1、材質:外冷板烤漆內201不銹鋼傳遞窗、外冷板烤漆內304不銹鋼傳遞窗、全201不銹鋼傳遞窗、全304不銹鋼傳遞窗;
2、機械互鎖|機械聯鎖;
3、殺菌燈(選配);
4、底部安裝不銹鋼滾筒輸送線。

滾筒輸送線介紹:
滾筒輸送線是指能夠輸送單件重量很大的物料,或承受較大的沖擊載荷的機械。適用于各類箱、包、托盤等件貨的輸送,散料、小件物品或不規則的物品需放在托盤上或周轉箱內輸送。

傳遞窗分類:普通傳遞窗(分為:電子互鎖傳遞窗和機械互鎖傳遞窗)、風淋傳遞窗、層流傳遞窗;

滾筒傳遞窗|滾筒輸送線傳遞窗規格尺寸:

可為用戶非標定制各種尺寸的滾筒傳遞窗、滾筒輸送線傳遞窗!
]]>
層流傳遞窗主要應用于制藥行業GMP凈化車間潔凈區與潔凈區之間、潔凈區與非潔凈區之間小件物品的傳遞,以減少潔凈室的開門次數,把對潔凈室的污染降低到最低程度。

層流傳遞窗配壓差表、電子聯鎖、紫外線殺菌燈、液槽高效過濾器

層流傳遞窗帶PAO/DOP檢測口;

也可參考產品詳情:百級層流傳遞窗
產品小知識:
層流傳遞窗與風淋傳遞窗的區別?
1、層流傳遞窗出風速度平均為0.45m/s,采用的是外轉子風機,潔凈度要求高,主要是給物料傳遞時提供一個超潔凈的空間;
2、風淋傳遞窗出風速度平均為22m/s,采用的是大功率風淋間轉用風機,強有力的吹除物料表面上的塵埃。
也可了解產品詳情:風淋傳遞窗
]]>包含產品介紹和用途、使用環境和條件、安全事項、技術特征、結構特征、工作原理、操作及按鍵說明、故障分析與排除、維修與保養、運輸、儲存、開箱及檢查。

一、產品介紹和用途:
風淋傳遞窗是為了防止潔凈室之間的交叉污染而設計的潔凈室配套設備。主要用于潔凈區之間或潔凈區與非潔凈區之間的小物品傳遞,以減少潔凈室的開門次數,把對潔凈區的污染降低到最低程度,有效保證了除塵效果。
風淋傳遞窗可分為電子互鎖機構和機械互鎖機構兩種。其具有結構緊湊,外形美觀、噪音低、安裝使用及維護方便等優點。
它廣泛用于電子、國防、精密儀器、儀表、汽車制造、制藥、食品、化工、農業、生物、醫院等各個工業部門和種類科學實驗室。
二、使用環境和條件:
溫 ???度:5℃~35℃
相對濕度:不大于85﹪(+35℃)
大氣壓力:86KPa~106 KPa
最大塵埃濃度:3500粒/升(塵埃粒徑不大于0.5μm)
環境潔凈度:30萬級以上
電源:380 V;50HZ

三、安全事項:
(1)、基本安全事項
a?本產品屬于室內使用型,請不要在室外使用,請不要置于高速塵源和震源處。
b 請不要用揮發油、稀釋劑、腐蝕性溶劑等擦拭箱體,以免傷及漆層或引起變色。
c 禁止用于下列場所:低溫、高溫、多濕、結露、多塵以及有油煙=霧氣的地方。
d 確保維修空間以便于風機,過濾器的更換以及電器元件和線路的檢修。
e 風淋傳遞窗內壁材質為不銹鋼,請勿用手或東西劃傷面板,以免影響美觀。
(2)、電氣安全事項
a 先將產品就位后接線、接電源作業,以免造成人身傷害。
b 請確認本產品的額定電壓、頻率是否與輸入電源的參數相符,以免損傷電器元件,引起火災。
c 風機為三相380V電源,若接反會導致風速下降,此時只需調換任意兩相,即可恢復正常工作。
d 產品使用的電鎖要求:12VDC供電,200MA以下電流,并注意不要外接二極管(電路板已帶)
e 產品使用的門磁開關要求:關門時觸點閉合,開門時觸點斷開
f 因線路板限制,各接口端子建議均不要外接大于100W設備,如風機功率較大或燈盤較多可經交流接觸器及中間繼電器轉接。
(3)、運行安全事項
a 在正常大氣條件下,本產品電源輸入端與機殼或外露的導電部分之間的絕緣電阻值應大于20MΩ?,溫度試驗后絕緣電阻值應大于2?MΩ。
b 接通電源后雙門立即互鎖,只能打開其中一扇門,不能同一時間強行拉開兩扇門,否則會損壞雙門互鎖系統(電子互鎖結構)。
c 斷開電源后雙門可以同時打開(電子互鎖結構)。
d 在任何情況下只能打開其中一扇門,不能同一時間強行拉開兩扇門,否則會損壞雙門互鎖系統(機械互鎖機構)。
e ?如發現工作出現異常,應及時切斷電源,并通知有關人員進行檢修處理。或與本產品的經銷商或本公司聯系。
f 檢修時應先切斷電源,以免無意中啟動運轉,造成人身傷害。
四、技術特征:
產品名稱:風淋傳遞窗
外形尺寸: ?????????????????????????(㎜)
工作尺寸: ?????????????????????????(㎜)
高效過濾器過濾效率:99.99﹪@≥0.3μm
尺寸: ????????????????????????????????(㎜)
初效過濾器過濾效率:35﹪@≥5.0μm
尺寸: ??????????????????????????????(㎜)
功率: ????????W
風速:≥22m/s
噴嘴直徑:Φ25㎜
噴嘴材質:不銹鋼
了解產品詳情:風淋傳遞窗
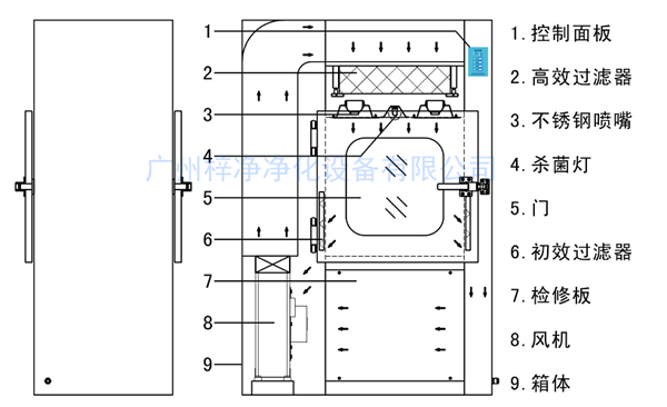
結構特征:

采用國際標準的潔凈原理和最優化的箱體設計。
1、風淋傳遞窗由箱體、風機、初高效過濾器、控制板等幾大部件組成。
2、箱體表面采用冷板噴塑(采用多層酸洗技術,靜電無塵噴塑處理)或全不銹鋼板制作,工作區采用不銹鋼板,平整光潔耐磨。
3、兩側門裝有機械互鎖或者電子互鎖裝置使兩側門不能同時處于開取狀態。
4、可根據客戶要求安裝壓差表或箱體兩側裝對講機,使箱體兩方拿送方便。
5、門上采用EVA密封條材料,密閉性能高。
6、可以采用紫外線殺菌燈或臭氧條菌(特別適合于食品行業和醫藥行業,臭氧殺菌原理:臭氧是一種廣譜殺菌劑,可殺滅細菌繁殖體和芽孢、病毒、真菌等,并可破壞肉毒桿菌素,臭氧在水中殺菌速度比氯快得多,是氯的3000倍)。
7、考慮到使用壽命,建議將該產品至于十萬級或潔凈度更高的潔凈區域中使用。
五、工作原理:
工作區內環境空氣經過初效過濾器,由風機壓入靜壓箱,再經過高效過濾器過濾后從風淋噴嘴吹出,形成高速潔凈氣流,潔凈氣流以高速均勻的風速由可旋轉噴嘴從各個方向噴射到貨物表面,有效而迅速的清除附著在貨物上的塵埃粒子,再經初高效過濾后重新循環到風淋區域,從而達到凈化效果。

六、操作及按鍵說明:
(1)、主板面膜按鍵說明
a 開關:當一方按下“開關”鍵時,電源指示燈點亮,此時產品通電。在通電的狀態下,使用者可對產品實施吹淋、殺菌等操作。
b 吹淋:當按下“吹淋”鍵時,系統自動進入吹淋流程進行吹淋;當正在吹淋時如果再一次按下“吹淋”鍵,系統將即時停止吹淋并既定出吹淋流程。
c 殺菌:當按下“殺菌”鍵時,殺菌燈啟動;當再按下“殺菌”鍵,殺菌燈關閉。
d 時間設置:風淋傳遞窗的吹淋時間可通過此按鍵進行設置,按下“時間設置”鍵5秒鐘左右,蜂鳴發出“嘀”聲。此時進入風淋時間設置狀態。面板上的4個功能框內的指示燈分別代表4組吹淋時間。“形關”指示燈(10秒)、“吹淋”指示燈(15秒)、“殺菌”指示燈(20秒)、“時間設置”指示燈(25秒)。使用者可通過按下“時間設置”鍵,選擇相應的吹淋時間。

(2)、指示圖標顯示說明
a 電源指示燈:當接通電源后,電源指示燈被點亮,表示系統運行正常。
b 外門指示燈:當外門指示燈亮,表示此時外門被打開,此時內門鎖啟動。
c 內門指示燈:當內門指示燈亮,表示此時內門被打開,此時外門鎖啟動。
d 吹淋指示燈:當吹淋指示燈被點亮時,表示風機中繼已經啟動,系統正處于吹淋狀態;當吹淋完成后,風機中繼關閉,吹淋指示燈也相應滅掉,蜂鳴發出“嘀、嘀、嘀”聲以提示吹淋完成。
e 殺菌指示燈:當殺菌指示燈被點亮時,表示殺菌繼電器已經啟動;當殺菌指示燈滅掉時,表示殺菌繼電器已關閉。

2、主板接線說明
主板與主板之間用16位排線連接,副板與其中一塊主板之間用14位排線連接。
輸入、輸出端子說明:
(1)、強電輸入接口
供電電源:220VAC(絲印為AC220V L N)
(2)、強電輸出接口
a 風機:1A ?220VAC(接交流接觸器線圈,絲印為風機中斷 A1 A2)
b 殺菌:1A ?220VAC(絲印為殺菌 A3 A4)
c 照明:1A ?220VAC(如燈管較多可接中間繼電器,絲印為照明 A5 A6)
(3)、弱電輸入接口
a?內門門磁開關:無源觸點(絲印為內門磁GND D4)
b 外門門磁開關:無源觸點(絲印為外門磁GND D3)
(4)、弱電輸出接口
a?開關電源:12VDC(絲印為12VDC GND 12V)
b 外門電源:200mA??DC12V(絲印為外門鎖GND D1)
c 內門電源:200mA??DC12V(絲印為內門鎖GND D2)
2、操作說明
(1)、安裝檢修:內外門同時打開,照明燈亮。此時“照明”按鍵無效,內外門指示燈同時亮表示內、外門同時打開。
(2)、正常工作:
a?打開外門:照明燈亮,此時蜂鳴器將發出連續的“嘟,嘟,嘟,嘟”振鈴提示音,告知對方有貨物送到,同時內門鎖開啟以防止灰塵或細菌進入內部;當貨物放入窗口后關上外門,這時系統自動進入吹淋過程。
b ?吹淋流程:當系統進入吹淋流程時,內外門同時開啟,延時1~2秒后風機啟動對貨物進行吹淋,吹淋過程進行大約10秒鐘(可設置),吹淋結束后風機停止,同時內外門關閉,這時可以開門取出已去塵或者去塵以及殺菌的貨物。當吹淋結束后,如果內外門沒有動作,照明燈將延時20秒后自動熄滅。另外,如果在吹淋過程中按下“吹淋”鍵,系統將會自動退出吹淋流程,恢復到初始狀態。
c打開內門:當吹淋結束后,這時打開內門,外門鎖啟動以防止灰塵或細菌進入內部,蜂鳴器發出連續的“嘟,嘟,嘟,嘟”振鈴提示音,告知對方貨物已取出(也可以通過與對方通話告知),當貨物取出后關上內門,如果內門沒有被打開,照明燈將延時幾秒鐘后自動熄滅。
以下為正常工作流程各狀態下所進行的動作:
開外門,內門閉合—內門鎖啟動,外門指示燈亮紅色,照明開,內門蜂鳴器發出連續的“嘟,嘟,嘟,嘟”振鈴提示音;
開外門后后關閉—內外門鎖同時啟動,內外門指示燈亮紅色,延時1秒,吹淋風機啟動,延時10秒后內外門鎖關閉及風機停止,內外門指示燈熄滅。開內門,外門閉合—外門鎖啟動,內門指示燈亮紅色,照明開,外門蜂鳴器發出連續的“嘟,嘟,嘟,嘟”振鈴提示音;開內門后關閉—外門鎖關閉,內外門指示燈滅掉,照明延時幾秒鐘后滅掉。
(3)、手動風淋:當兩門都閉合時按下“吹淋”鍵,系統將淋自動進入吹淋流程。如果系統原告已經是在吹淋過程中,這時按下“吹淋”鍵,系統將立即退出吹淋流程,并恢復到初始狀態。
(4)、殺菌:殺菌功能獨立,不論工作在那種狀態,按“殺菌”鍵可啟動殺菌功能,再按下“殺菌”鍵則退出殺菌功能。
七、故障分析與排除:
| 故障現象 | 原因 | 排除方法 |
| 平均風速低 | 1、預過濾積塵太多
2、高效過濾器失效 |
1、清洗或更換預過濾器
2、更換高效過濾器 |
| 風機不轉 | 風機電源控制線路接觸不良 | 檢查風機控制線路是否接觸良好 |
| 機械互鎖 | 機械互鎖機構損壞 | 調整門上扣件或勾鐵 |
| 電子互鎖 | 電子互鎖機構損壞 | 更換電子鎖或內部電器 |
八、維修與保養:
1、為保證凈化區域的潔凈度,每次使用之前應提前15分鐘開機。
2、凈化區應盡量避免作大幅度激烈動作。
3、根據實際需要,可用無級調速開關調節風機風量。
4、長期不使用的凈化單元,應拔下電源插頭。并在使用前用吸塵氣或不產生纖維的工具認真清潔,以免殘留物腐蝕箱體。
5、禁止在預過濾器進風口放置物品,以免造成風量減小,降低凈化能力。
6、根據環境的潔凈度,定期(初效一般為1~6個月,高效一般為6~12個月)更換過濾器。
7、定期(一般每兩個月一次)用塵埃粒子計數器測定用本產品實施凈化的潔凈度區域的潔凈度,當實測的潔凈度與要求的潔凈度不符時,應查明原因(是否有泄漏、高效是否有失效等)若高效過濾器已失效,則應更換新的高效過濾器。
8、更換高效過濾器及初效過濾器時應停機進行。
9、更換高效過濾器時應特別注意以下事項:
(1)、更換高效過濾器時應特別注意拆箱、搬運及安裝取用時確保濾紙完整無損,禁止用手觸及濾紙造成破損。
(2)、安裝前,將新的高效過濾器對著亮處,以肉眼看高效過濾器中是否因運輸等原因而出現漏洞,如有漏洞則不能使用。
(3)、更換高效過濾器時應首先卸下箱蓋,再御下壓條,然后將失效的高效過濾器取出,換上新的高效過濾器(注意高效過濾器的箭頭標志應與凈化單元出風流向一致),并將壓條與箱蓋回原位。
九、運輸、儲存:
凈化單元適用于一般交通工具運輸。運輸途中,不得側置、沖擊、碰撞,防止雨、雪侵襲與日光曝曬,以免造成損壞,銹蝕。
凈化單元應存放在溫度為-10℃~+40℃,相對溫度不大于80﹪,無酸堿等腐蝕性氣體且通風良好的庫房中。在包裝狀態下的儲存同期不得超過180天。
十、開箱及檢:
1、開箱時,應文明作業,不得有粗暴、野蠻的操作,以免傷及箱內凈化單元或造成人身傷害。
2、開箱后,首先請確認本產品是否為所定產品,然后對裝箱清單內容仔細檢查是否有自由缺件,各部件是否有因運輸造成的損壞現象,如發現損壞,請在收到本產品一周內與本公司聯系。
3、出現自行改裝現象,則不在保質范圍之內。
a 禁止在一分鐘內反復操作電源開關,以免因頻繁操作而損壞電器元件。
b本產品不具有防爆能力,嚴禁在易燃、易爆的環境下使用。
c請不要觸碰產品內的電器元件,當必要觸碰時請先切斷電源。
d嚴禁改裝,以免導致觸電、火災等事故。出現自行改裝現象,則不在保質范圍之內
e查時請切斷電源,以免無意中啟動運行,造成人身傷害。
f不要將重物放在電源引線上、不要夾壓電源線,以免電源引線破損而引發火災、觸電。
g換熔斷器時,要確保其容量不得超過指定容量,以免引起火災。
h長期停用時,請從插頭上拔出電源插頭,請不要用潮濕的手插、拔電源插頭,以免觸電。
i出現異常情況時,請停止運轉、切斷電源后,在與本產品的經銷商或本公司聯系。
j請檢查插頭異體入插座異體部位是否沾有灰塵,若沾有灰塵易引火災。
k 務必將電源線接在帶地線的插座上。
十一、保修須知:
(一)、本設備自購買之日起計算保修期,保修期內正常狀態下使用本設備而發生故障,可根據保修條款的內容,出示本保修卡原件可無償服務。用戶保留風華憑證及此保修證書,在維修時一起出示。
(二)、在保修期內以下情況將實施有償維修服務:
1、不能出示有效保修卡原件或有效憑證。
2、購買產品日期、銷售單位名稱(蓋章有效)等項目未完全填寫或涂改保修卡。
3、出于未能按照用戶手冊上使用方法和注意事項操作而故障。
4、未經廠家授權而對設備進行拆卸、修理、改裝而造成的故障。
5、更換的損壞零件,將屬本公司所有。
三、保修證書上各項目須由用戶直接完全填寫清楚,以取得12個月的保修期。
四、本保修卡請妥善保管,遺失不補。
了解產品更多詳情:
查看更多產品分類及規格尺寸:
]]>主要介紹一下普通傳遞窗尺寸、風淋傳遞窗規格、層流傳遞窗尺寸相關信息,供潔凈室施工、采購、安裝時參考。
一、普通傳遞窗規格|傳遞窗尺寸:


二、風淋傳遞窗規格|傳遞窗尺寸:


產品詳情:風淋傳遞窗
二、百級層流傳遞窗規格|傳遞窗尺寸:

一般選用內尺寸為:500*500*500mm? ?600*600*600mm? ? 700*700*700mm? ? 750*750*750mm
產品詳情:百級層流傳遞窗
查看更多產品分類:傳遞窗
以上三種傳遞窗都可按用戶要求定制!
制作材料說明:購買及報價時可選外冷板烤漆內201不銹鋼、外冷板烤漆內304不銹鋼、全201不銹鋼、全304不銹鋼。
]]>1、材質:SUS304砂光不銹鋼1.0mm;
2、高效過濾器:配液槽高效過濾器,過濾效果達到99.99%-99.999%(了解詳情:液槽高效過濾器);
3、門體及內部設計:門體與箱體在同一平面上,內部四角圓弧無死角;
4、PAO測試:帶PAO/DOP檢測口;
5、電源功率:220V 50HZ? 0.25KW;
6、平均風速:0.36-0.54m/s(GMP2010標準:新版GMP標準);
7、配壓差表、紫外線殺菌燈。

傳遞窗分類介紹:
傳遞窗分類:普通傳遞窗(分為:電子互鎖傳遞窗和機械互鎖傳遞窗)、風淋傳遞窗、層流傳遞窗;

百級層流傳遞窗|層流潔凈傳遞窗工作原理:
當貨物/物料要進入潔凈區時需經吹淋過濾,其吹出的潔凈空氣可去除人與貨物所攜帶的塵埃,能有效的阻斷或減少塵源進入潔凈區。百級層流傳遞窗的前后兩道門為電子互鎖,又可起到氣閘的作用,阻止未凈化的空氣進入潔凈區域。

百級層流傳遞窗|層流潔凈傳遞窗使用方法及注意事項:

1、“上調”鍵
按此鍵吹淋時間增加。
2、“下調”鍵
按此鍵吹淋時間減小。
3、“殺菌”鍵
按下此鍵啟動殺菌狀態,殺菌指示燈亮。再按下此鍵關閉殺菌功能,相應指示燈滅。
4、“照明”鍵
按下此鍵啟動照明狀態,再按下此鍵關閉照明功能,相應指示燈滅。
5、“電源”鍵
按此鍵相應指示燈亮、內外門解鎖,吹淋停止,再按下此鍵關閉急停功能,相應指示燈滅。

百級層流傳遞窗|層流潔凈傳遞窗產品用途:
一般常用于GMP制藥凈化車間。
百級層流傳遞窗|層流潔凈傳遞窗定制尺寸:
一般選用內尺寸為:500*500*500mm? ?600*600*600mm? ? 700*700*700mm? ? 750*750*750mm
百級層流傳遞窗|層流潔凈傳遞窗維修與保養:
1、為保證凈化區域的潔凈度,每次使用之前應提前15分鐘開機。
2、凈化區應盡量避免作大幅度激烈動作。
3、根據實際需要,可用無級調速開關調節風機的風量。
4、長期不使用的凈化單元,應拔下電源插頭。并在使用前用吸塵氣或不產生纖維的工具認真清潔,以免殘留物腐蝕箱體。
5、禁止在預過濾器進風口放置物品,以免造成風量減小,降低凈化能力。
6、根據環境的潔凈度,定期(初效一般為1~6個月,高效一般為6~1 2個月)更換過濾器。
7、定期(一般每兩個月一次)用塵埃粒子計數器測定用本產品實施凈化的潔凈度區或的潔凈度,當實測的潔凈度與要求的潔凈度不符時,應查明原因(是否有泄漏、高效是否有失效等)若高效過濾器已失效,則應更換新的高效過濾器。
8、更換高效過濾器及初效過濾器時應停機進行。
9、更換高效過濾器時應注意以下事項:
(1)、更換高效過濾器時應特別注意拆箱、搬運及安裝取用時確保濾紙完整無損,禁止用手觸及濾紙造成破損。
(2)、安裝前,將新的高效過濾器對著亮處,以肉眼看高效過濾器中是否因運輸等原因而出現漏洞,如有漏洞則不能使用。
(3)、更換高效過濾器時應首先卸下箱蓋,再卸下壓條,然后將失效的高效過濾器取出,換上新的高效過濾器(注意高效過濾器的箭頭標志應與凈化單元出風流向一致),并將壓條與箱蓋回原位。
(產品分類:傳遞窗)
]]>